KRISTIANIASVINGEN 70C
Oslo, Norge
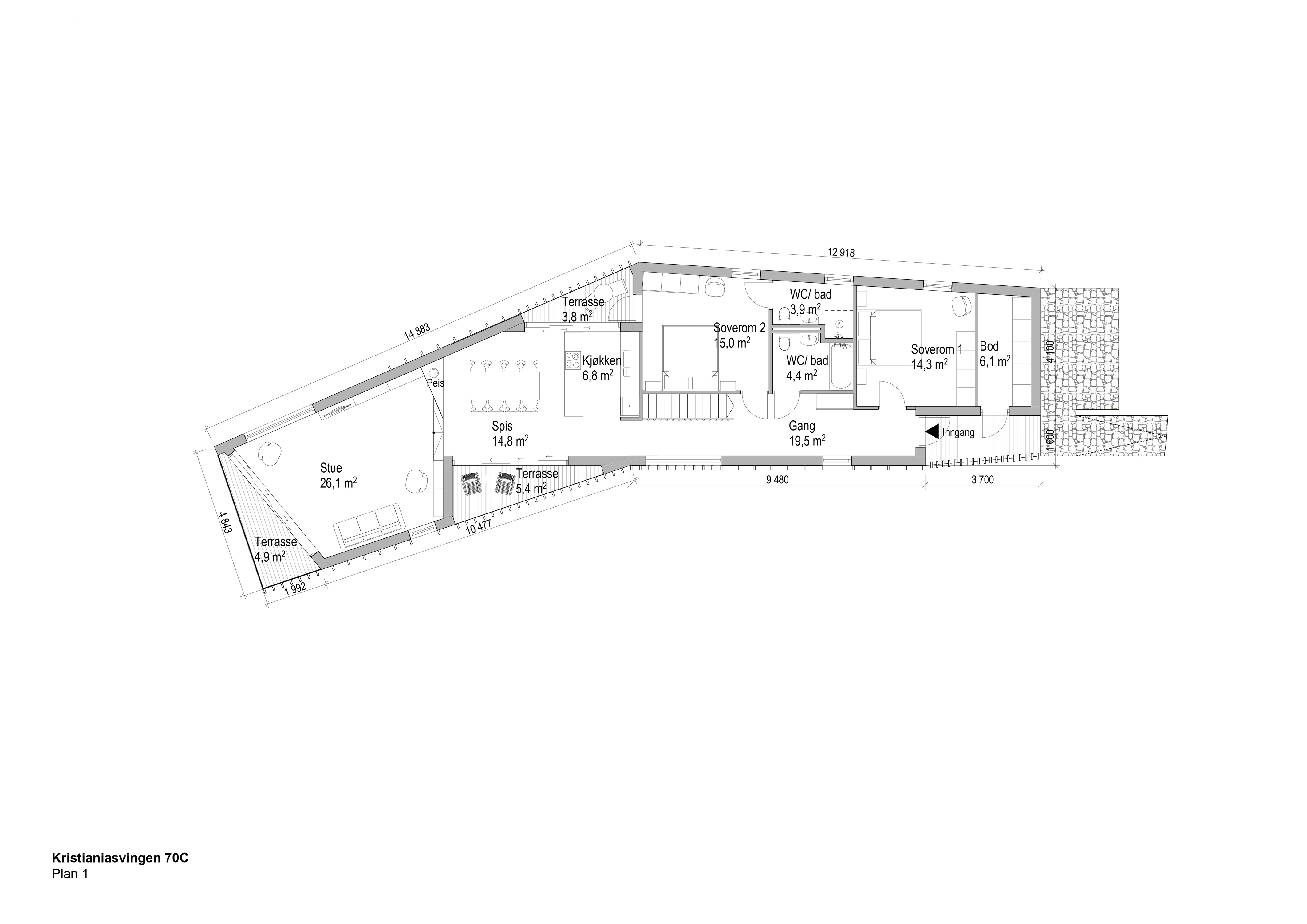
Kristianiasvingen 70C er en ny enebolig på en langsmal tomt som er nord-sørvendt, med en bøy mot øst. Tomten er delt av fra 70B med en bevaringsverdig villa. Den nye eneboligen underordner seg omgivelsene, med spesielt hensyn til villaen. I tillegg er boligen utformet for å gi minst mulig innsyn til naboer, både ved plassering av vinduer, lav bygningshøyde og nedtrapping av volumet med terrengfallet. Det er lagt opp til bevaring av eksisterende høy vegetasjon i eiendomsgrensene mot vest, noe som også gir ytterligere skjerming av boligen mot naboer. Ytterkledningen er tenkt i en lysbeiset liggende panel variert med stående spilefelter, og med pusset sokkel/underetasje - da fasadene til nabohusene er malt i lyse farger.
Type
Sted
Areal
Status
Byggherre
Type
Sted
Areal
Status
Byggherre
Type
Sted
Areal
Status
Byggherre