BRANNSTASJON BJØRVIKA

Oslo, Norge

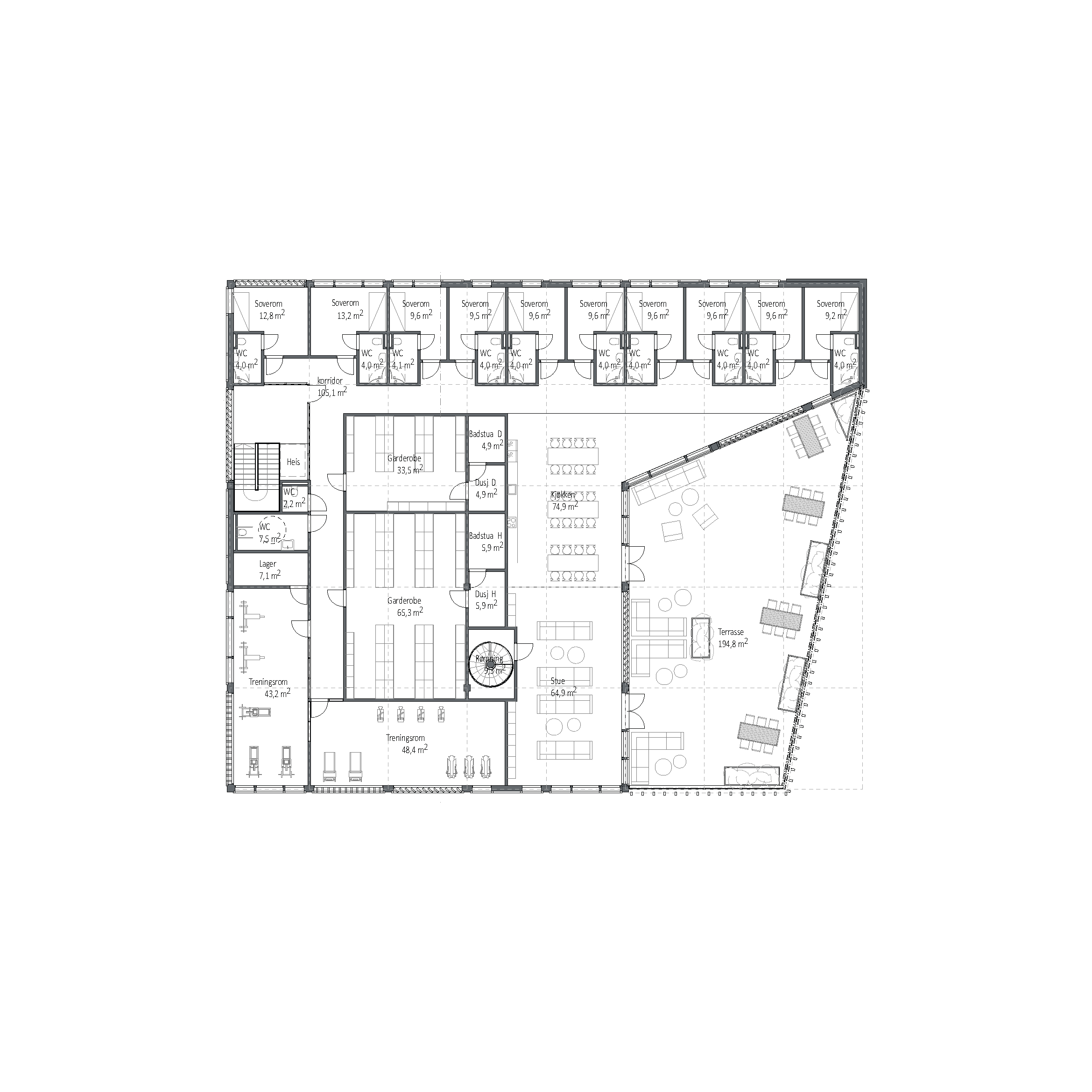
Brannstasjonen på Bjørvika er en konkurranse fra 2020. Vår tilnærming var å lage den nye brannstasjonen som en lett og transparent bygning, med åpne glassflater ut mot omgivelsene, og med mulighet til å kunne gå tett langs fasadene mens man ser inn i bygget. På endegavlen i tredje etasje, mot sørøst, er det en stor og eksponert LED-tavle, som er en kunstinstallasjon til formidling av bilder og film. I tredje etasje er en generøs og åpen terrasse som muliggjør publikumsbesøk, uten at denne er direkte tilgjengelig utenfra. Hovedinngangen er vendt mot byen i nordvest, godt markert. Gjennom sin inviterende utforming, gir bygget en sosial, samfunnsmessig og miljømessig verdi tilbake til byen.

Brannstasjon / konkurranse

Oslo

BTA 2.559 m2

Konkurranse fra 2020

Omsorgsbygg Oslo KF