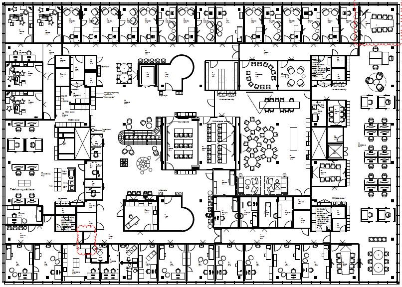
Kristian Ottosens hus har en vernet fasade i et vernet anlegg sentralt på Blindern, og tilhører UiO. Det ble opprinnelig tegnet i 1960 av Ark. Rinnan & Tveten. Vår oppgave innebar en ombygging og oppgradering av 2. etasje til moderne, tidsriktige lokaler for helsetjenesten i SiO. Fasaden ble rehabilitert for å forbedre inneklima og energiforhold i bygningen, hvor eksisterende vinduer med teak karm/ramme ble rehabilitert og fikk nytt glass. Planen er løst med kontorer og behandlingsrom langs fasadene. Mens i det opprinnelige atriet ligger resepsjonen og personalrom med et nytt overlys. De innvendige gangsonene har også fått glede av nye overlys. Nytt teknisk rom er bygget i atriet, men løftet opp i høyde med tak.
Program
Sted
Areal
Status
Byggherre
Program
Sted
Areal
Status
Byggherre
Program
Sted
Areal
Status
Byggherre
Helsetjeneste for studenter
Blindern, Oslo
2.500 m2
Ferdigstilt i 2018/2019 Brukstillatelse 12.02.2019