Forside
Prosjekter
Bolig
Bondelia Gjøvik
Bankveien 47
Dalbakkveien 9
Dr. Holms vei
Grav skolevei
Havna 24
Kristianiasvingen 70C
Munkerudvollen 25
Oberst Rodes vei 105
Setra vei
Skogbrynet 6E
Torshov Torg
Trollvasshytta
Velliveien
Wexels plass
Fritidsboliger
Geilo
Hallangspollen
Høgevarde
Kvitplassen Kvitfjell
Norefjell 903moh
Radisson Blu Resort Trysil
The Lodge Trysil
Offentlig
Etterstad vgs
Fjell barnehage
Hasselhaugen barnehage
Hole ungdomsskole
Hønefoss sykehjem
Morellbakken skole
Nøkkeland skole
Sjokoladefabrikken
Soria Moria basseng
Voksentoppen skole
Øraker skole
Kultur / Næring
Edderkoppen teater
Nordland teater
Nordland Teater Blackbox
Olympique Norefjell
Jerikoveien
Samferdsel / Offshore
Fredrikstad stasjon
Lørenskog stasjon
Offshore
Konsept / Konkurranse
Brannstasjon Bjørvika
Båtsfjord ungdomsskole
Svalbard Kulturhus
Rehabilitering
Bakkeløkka gård
Fagerborg skole
Nedre Foss gård
Kristian Ottosens hus
Gammel Aktuelt
Aktuelt
Om oss
Kontakt
FYST
Ringebu
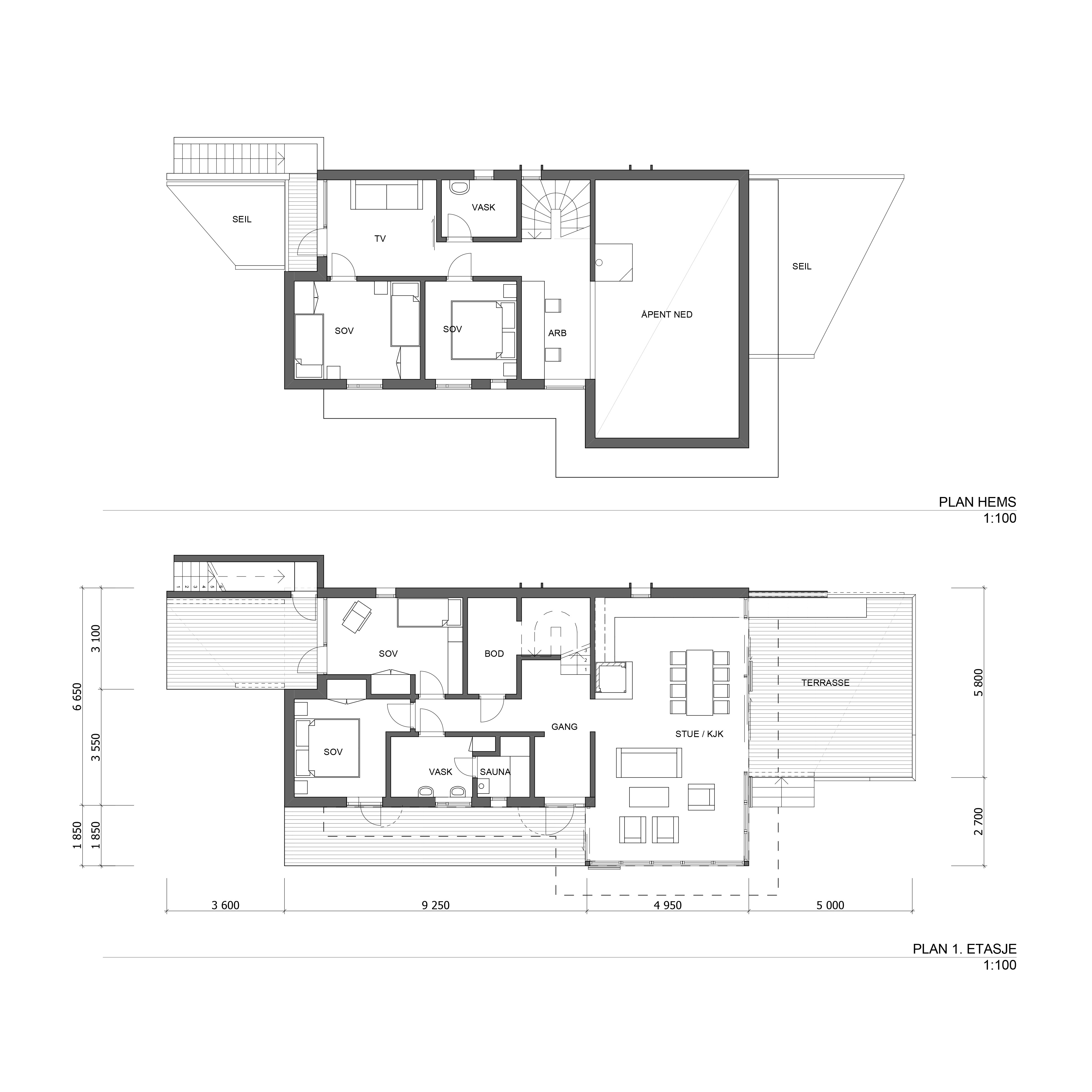
Utenfor Drøbak ligger denne private hytten som HK tegnet i 2009.
Foto av
Type
Sted
Areal
Status
Byggherre
Fritidsleiligheter
Ringebu
Ca. xxx m2 BRA
Under arbeid
xxx
Radisson Blu Resort Trysil
Alle prosjekter
Kultur / Næring