Forside
Prosjekter
Bolig
Bondelia Gjøvik
Dr. Holms vei
Havna 24
Kristianiasvingen 70C
Munkerudvollen 25
Setra vei
Skogbrynet 6E
Torshov Torg
Trollvasshytta
Wexels plass
Fritidsboliger
Geilo
Hallangspollen
Høgevarde
Kvitplassen Kvitfjell
Norefjell 903moh
Radisson Blu Resort Trysil
The Lodge Trysil
Offentlig
Etterstad vgs
Fjell barnehage
Hasselhaugen barnehage
Hole ungdomsskole
Hønefoss sykehjem
Morellbakken skole
Nøkkeland skole
Sjokoladefabrikken
Soria Moria basseng
Voksentoppen skole
Øraker skole
Kultur / Næring
Edderkoppen teater
Nordland teater
Nordland Teater Blackbox
Olympique Norefjell
Jerikoveien
Samferdsel / Offshore
Fredrikstad stasjon
Lørenskog stasjon
Offshore
Konsept / Konkurranse
Brannstasjon Bjørvika
Båtsfjord ungdomsskole
Svalbard Kulturhus
Rehabilitering
Bakkeløkka gård
Fagerborg skole
Nedre Foss gård
Kristian Ottosens hus
Gammel Aktuelt
Aktuelt
Om oss
Kontakt
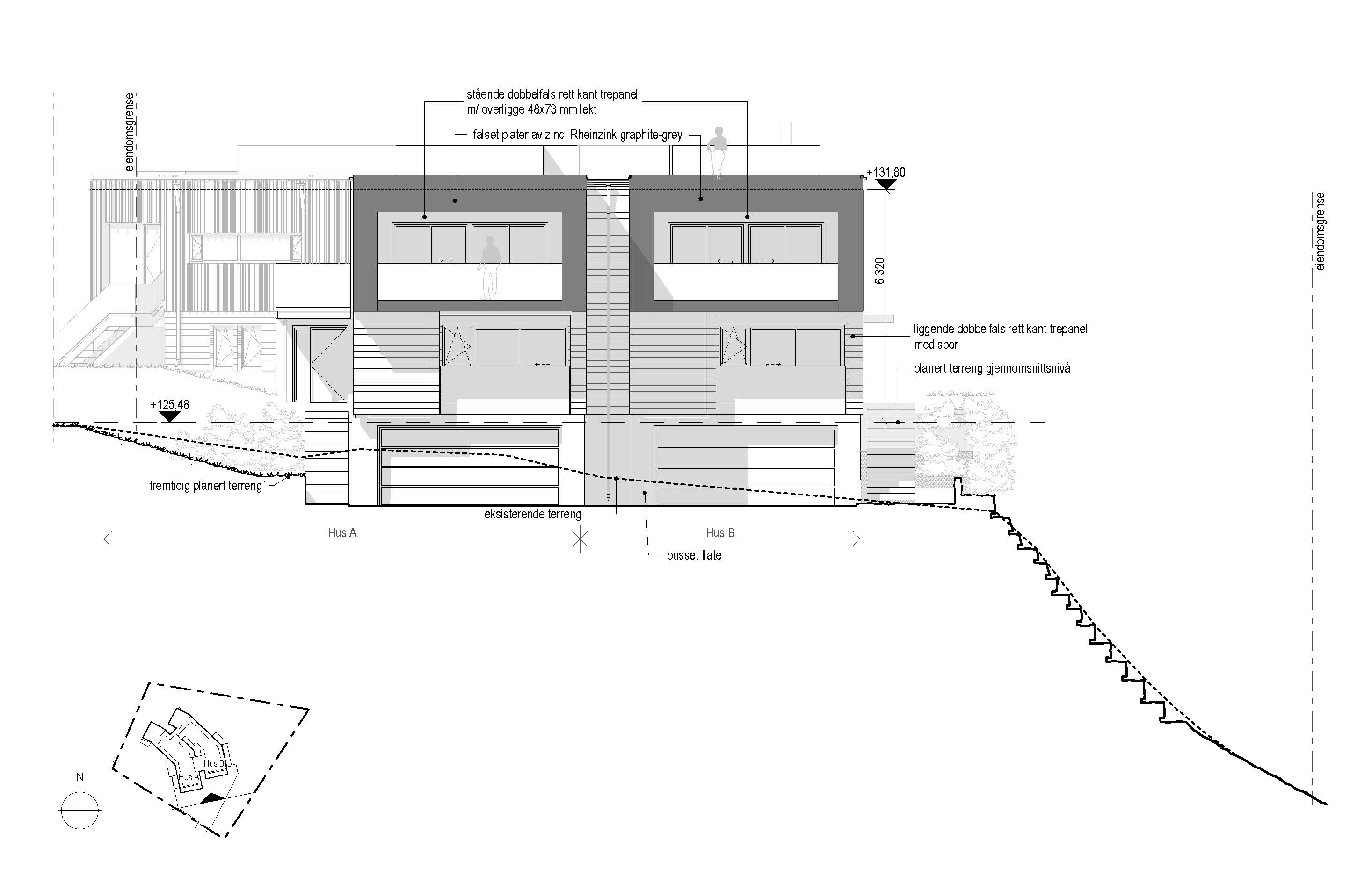
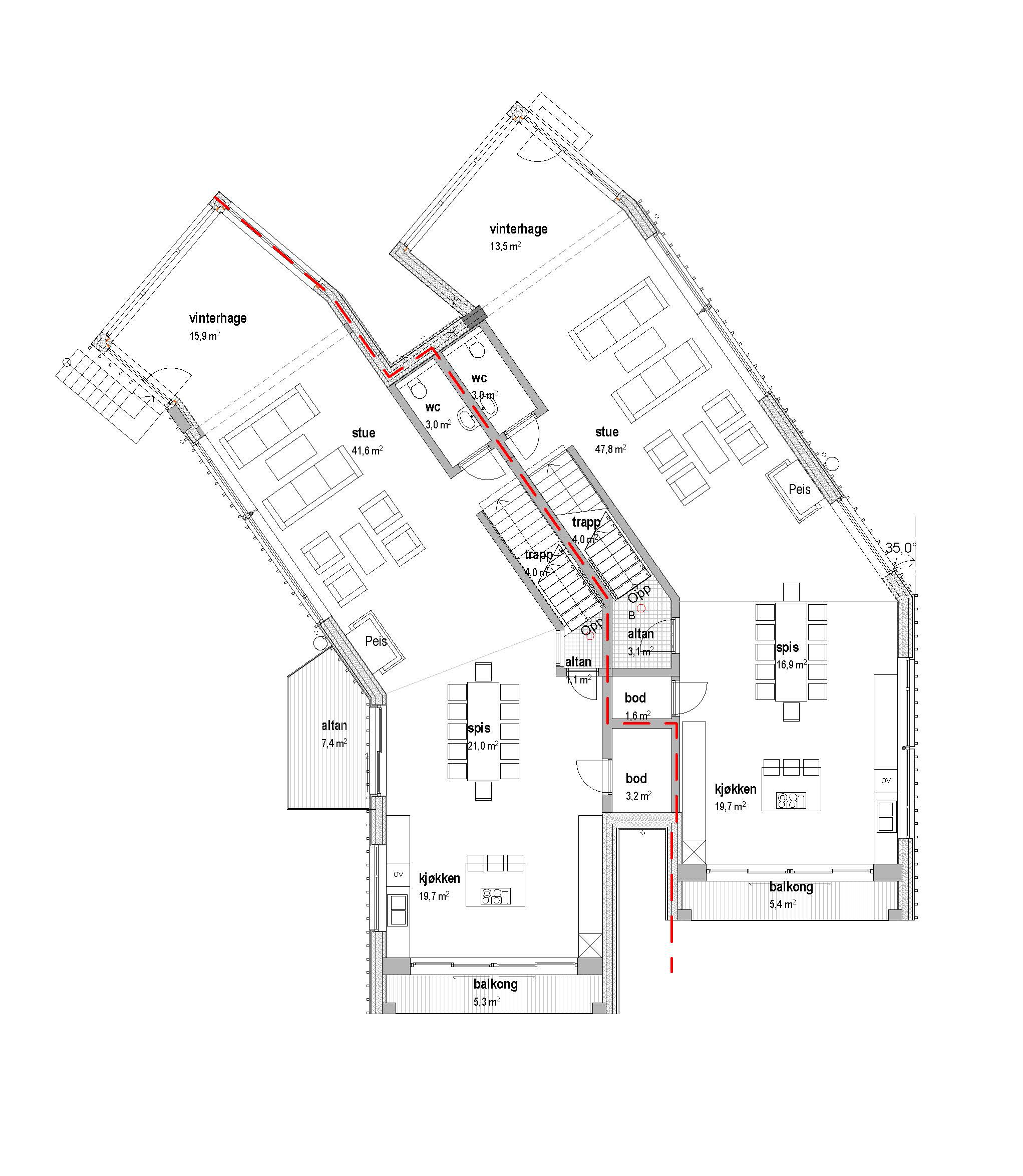
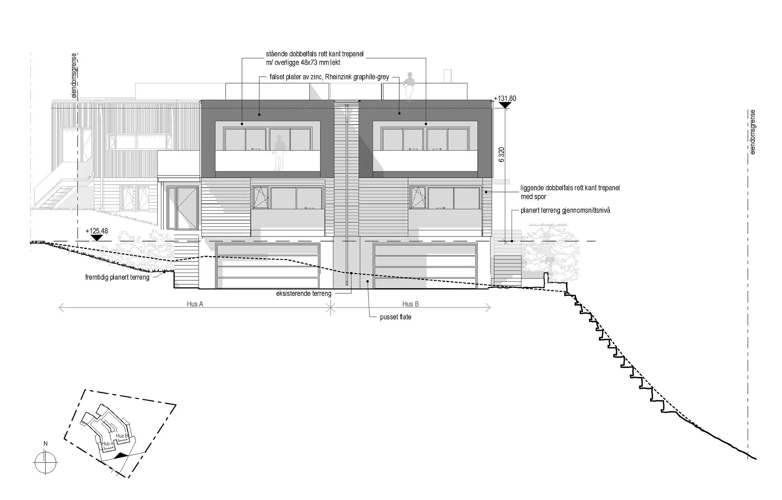
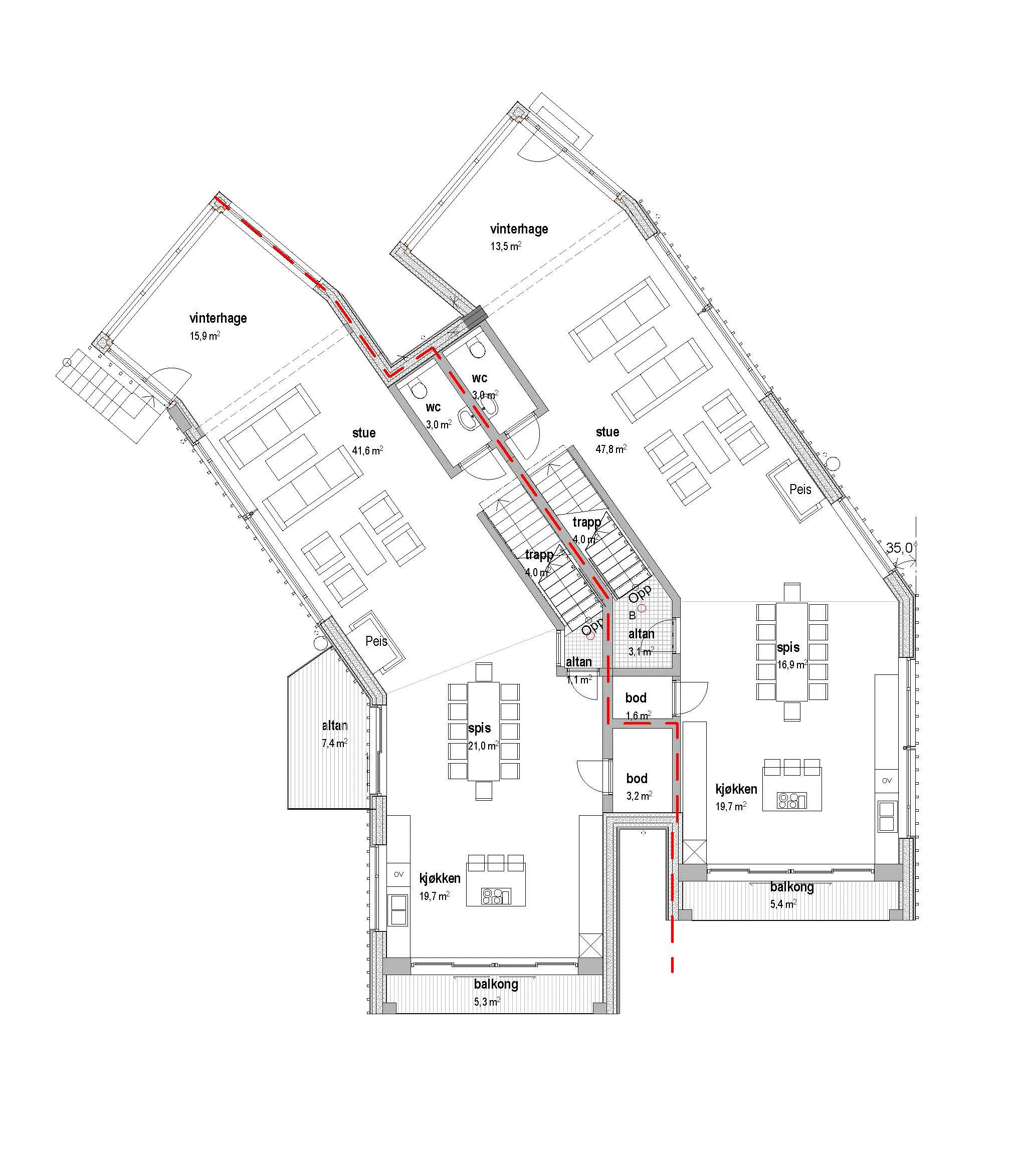
BANKVEIEN 47
Hosle, Bærum
Tekst
Type
Sted
Areal
Status
Byggherre
Tomannsbolig
Bærum
500 m2
Ferdigstilt i 20xx
MIC Invest A/S
Torshov torg
Alle prosjekter
Fritidsboliger