HALLANGSPOLLEN

Drøbak

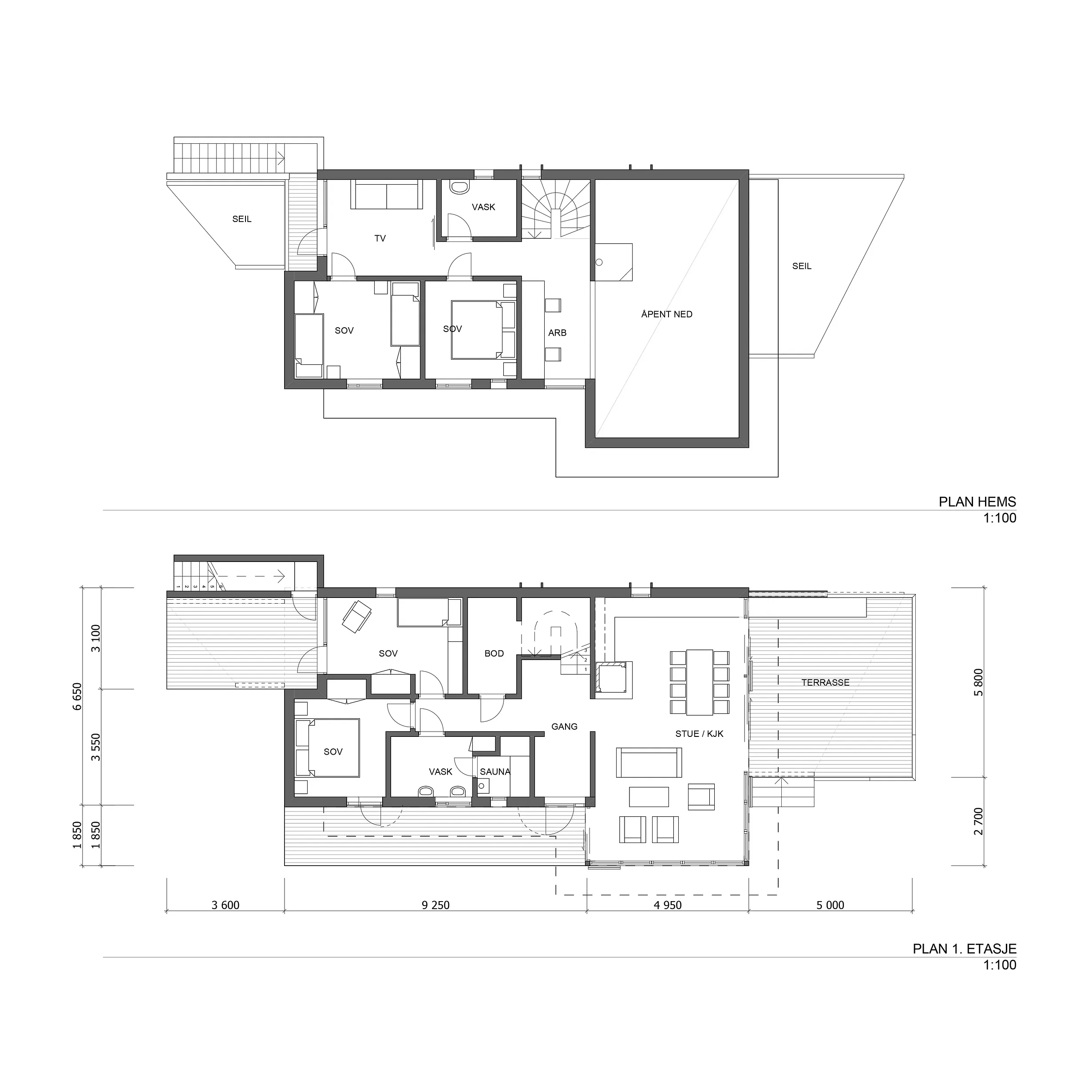
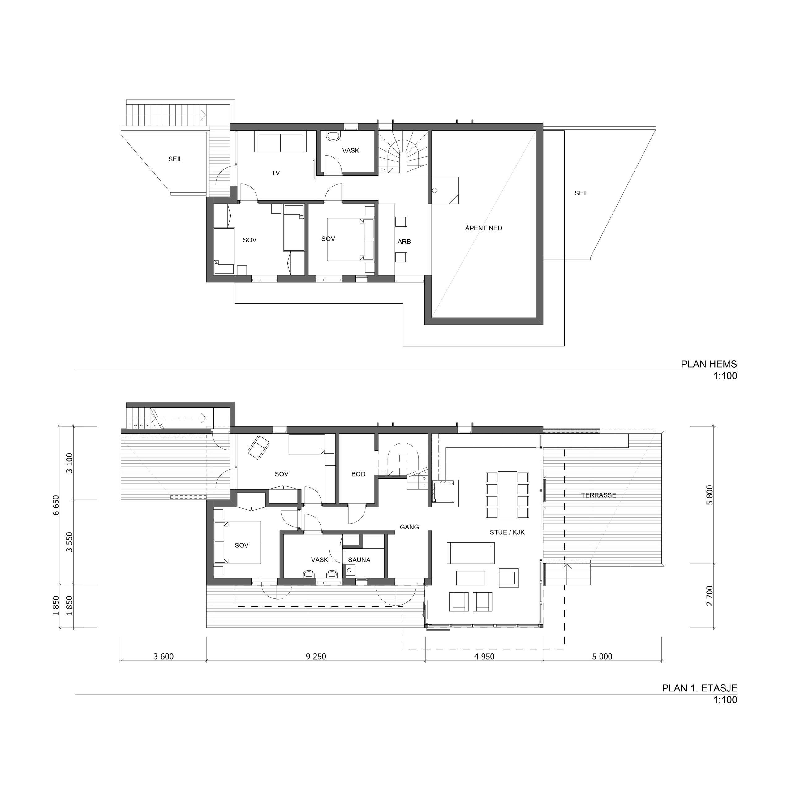
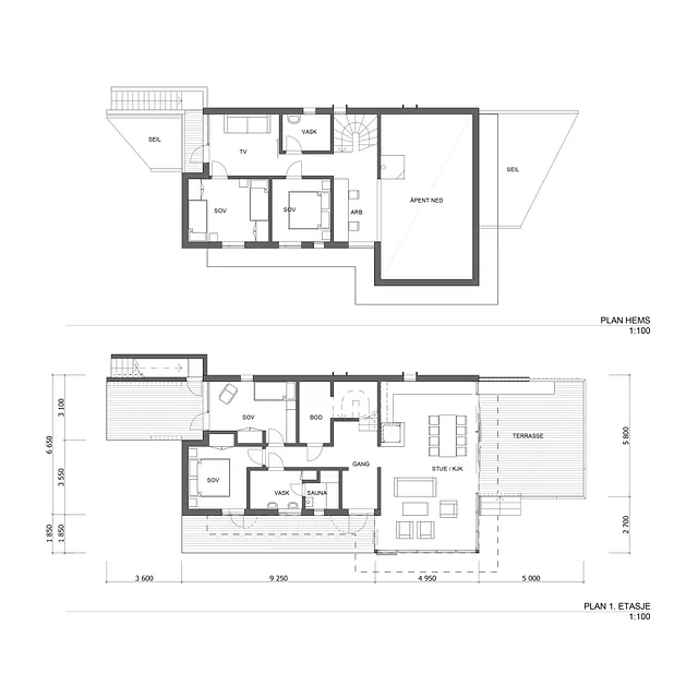
Utenfor Drøbak ligger denne private hytten som HK tegnet i 2009. Dette prosjektet tar utgangspunkt i en helhetlig og skånsom tilnærming til både arkitektur og natur. Hytten er utformet med enkelhet og harmoni som grunnprinsipp, samtidig som den tar hensyn til det eksisterende landskapet. For å minimere inngrep i terrenget er den nye fritidsboligen plassert på samme sted som den opprinnelige hytten. Kun mindre terrassering er utført i umiddelbar nærhet til bygget, og resten av terrenget er bevart i størst mulig grad. Materialvalget understreker prosjektets fokus på kvalitet og varighet. Fasader og konstruksjoner er utført hovedsakelig i treverk og glass, med yttervegger i slettpanel («låvepanel») kombinert med skyvbare skodder i liggende spiler. Fargepaletten består av matte naturtoner fra grått til brunt, supplert med kontrastfarger på utvalgte detaljer som dører og vindusomramminger for å skape dynamikk. For å gi fleksibilitet og komfort utendørs er det etablert midlertidige seil som skjermer uteplassene mot sol og nedbør, slik at uterommene kan brukes gjennom hele sesongen.

 

Foto: HK ark

Type

Sted

Areal

Status

Byggherre

Fritidsbolig

Drøbak

Ca. 180 m2 BRA

Ferdigstilt 2009

Privat